Vous souhaitez revoir l’agencement d’une pièce ou de la totalité de votre habitation, pour optimiser les espaces et harmoniser votre intérieur ? Voici un exemple de prestation réalisée dans le cadre de la rénovation d’une maison des années 60.
Type de prestation : Etude d’aménagement
Le lieu : Arcangues, Pyrénées Atlantiques.
Le client : Un couple avec trois jeunes enfants.
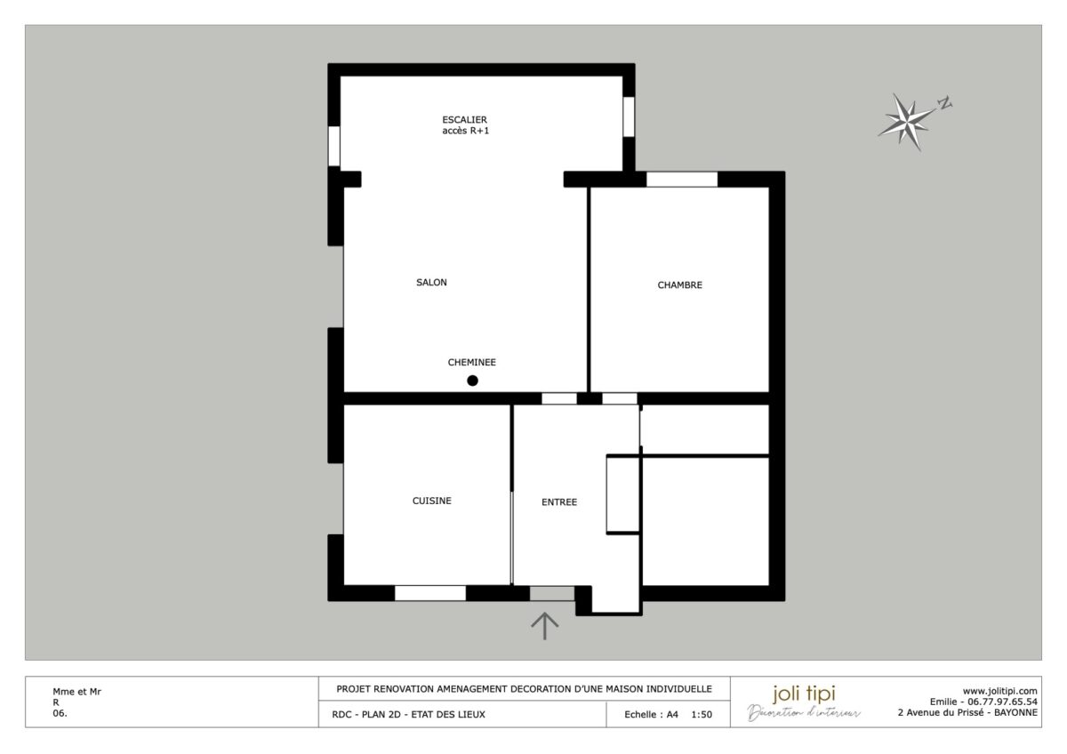
L’état des lieux :
Le brief clients :
Cette famille souhaitait une cuisine neuve, moderne et fonctionnelle, ouverte sur le salon. Un pièce à vivre plus grande, et surtout plus lumineuse. Et s’interrogeait sur la conservation ou non de l’escalier en bois massif, artisanal et solide, mais un peu disproportionné avec le volume du salon.
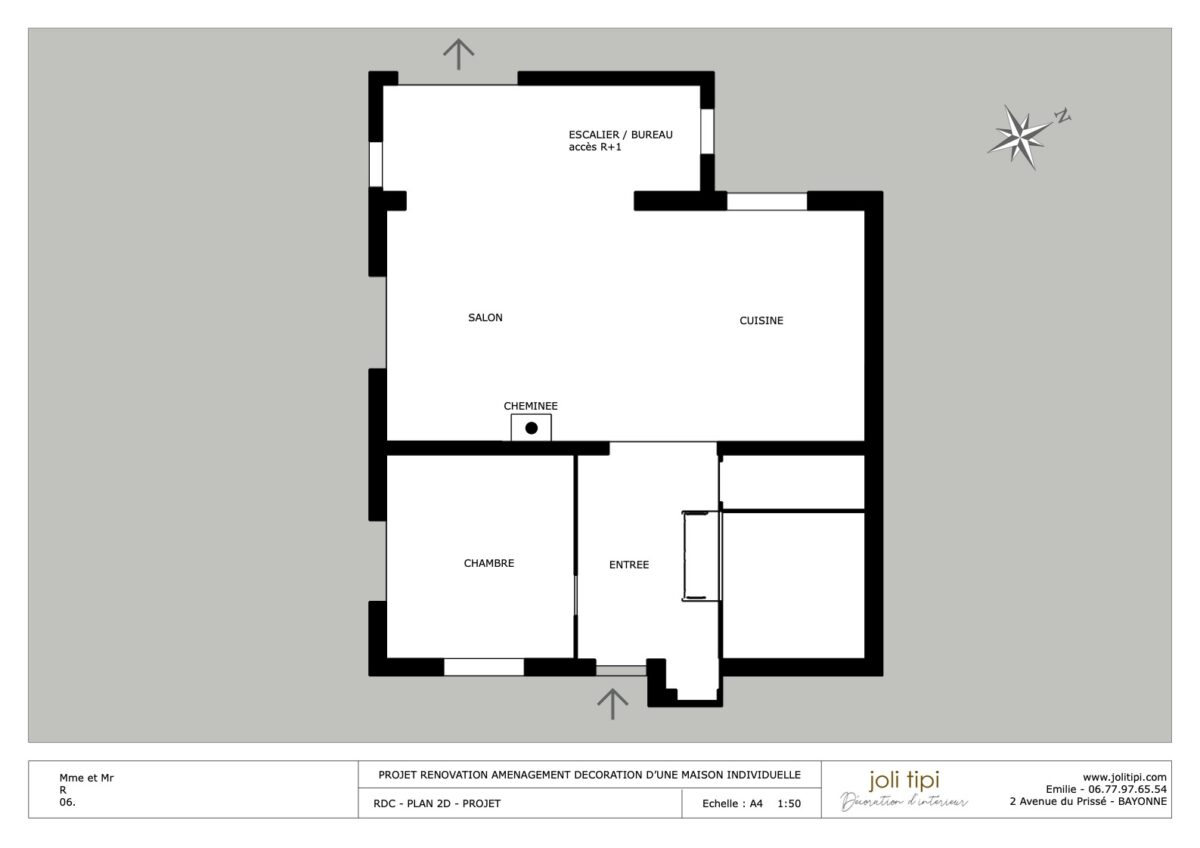
Modification du plan et redistribution des pièces
AVANT / APRES
<– –>


Pour ce projet, j’ai présenté deux versions d’implantation à mes clients.
La version #1 proposait un nouvel aménagement tout en conservant la disposition actuelle des pièces.
Alors que la version #2, retenue par mes clients, prévoyait une redistribution des pièces du RDC permettant notamment de créer une plus grande pièce de vie. Plus adaptée à leur grande famille et tournée vers le jardin ouest.
Dans le détail :
- L’entrée est conservée mais ouverte sur la nouvelle pièce de vie.
- La cloison entre le salon et la chambre parentale est supprimée.
- On transfère la cuisine dans cette nouvelle grande pièce de vie. Et la fenêtre est remplacée par une porte fenêtre coulissante pour un accès direct au jardin.
- L’escalier massif est remplacé par un modèle plus compact mais toujours confort, permettant la création d’une grande baie vitrée sur le pignon sud de la maison.
- Un bureau est intégré sous l’escalier, bénéficiant de la lumière de la petite fenêtre.
- Enfin, l’ancienne cuisine devient une chambre enfant.

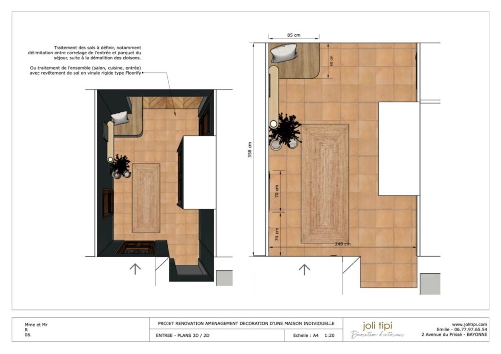
L’entrée
Une entrée désormais ouverte sur la pièce de vie grâce à l’agrandissement de l’ouverture. Je leur propose une banquette aux courbes douces, se prolongeant en meuble TV coté salon.


La pièce à vivre
Au salon, je propose de moderniser la cheminée rustique en supprimant l’habillage en pierre et bois. Le nouvel habillage aux lignes aux lignes épurées se prolonge jusqu’au plafond, et intègre des niches décoratives et une banquette de lecture. Le mur TV est proposé dans un vert soutenu pour faire un peu oublier la télévision.
Je dessine un escalier plus compact afin de réduire son emprise au sol et permettre l’intégration d’une baie vitrée permettant l’accès au jardin ouest. Visuellement plus léger, l’escalier est composé de deux structures distinctes : en partie basse, les quatre premières marches pleines s’étirent en un grand bureau. Alors que la partie supérieure est dessinée sans contre-marche pour laisser circuler la lumière naturelle.
La nouvelle cuisine s’installe à la place de l’ancienne chambre parentale et fait désormais partie intégrante de la pièce de vie. La fenêtre devient une baie vitrée coulissante permettant l’accès au jardin. Et la pièce de vie mesure désormais 45 m2 et comporte trois portes vitrées sur les façades sud et ouest pour un grand apport de luminosité.
Une chambre d’enfant à la place de l’ancienne cuisine
Cette pièce de seulement 10 m2 sera destinée à l’aîné des enfants de la famille. Elle bénéficie d’une belle lumière grâce à son exposition sud-est. Je dessine un dressing pont afin de conserver une parfaite circulation autour du lit et un accès facilité aux deux fenêtres avec ouverture à la française.
Et si vous aussi, vous avez besoin d’être accompagné pour la rénovation de votre logement : Choisissez la prestation qui convient à votre projet et Contactez-moi pour un conseil à domicile ou à distance.
Laisser un commentaire